
NEUBAU Penthousewohnung mit Dachterrasse
-
Willkommen in diesem exklusiven Neubau-Wohnprojekt bestehend aus nur sieben Wohnungen, welche die harmonische Atmosphäre des Landlebens geschickt mit der Dynamik der Kleinstadt Feldkirchen vereinen. Die Planung fokussiert sich hier auf höchsten Komfort und maximale Funktionalität.
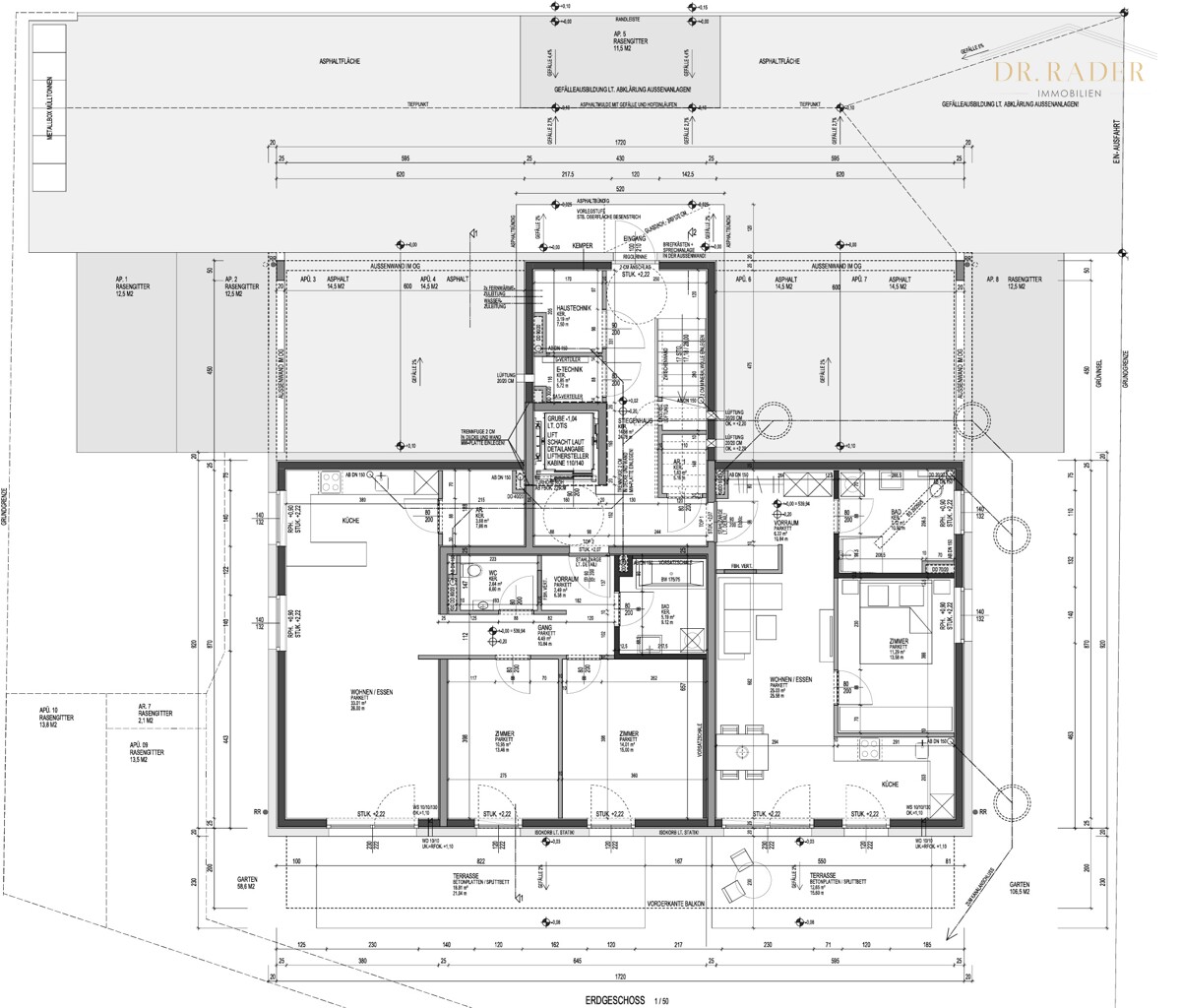
Sie gelangen mit dem Lift bequem direkt vor Ihre Wohnung. Überdachte PKW Abstellplätze befinden unmittelbar neben dem Hauseingang. Als Eigentümer können Sie den Grundriss Ihrer Neubauwohnung ganz nach Ihren persönlichen Wünschen mitgestalten.
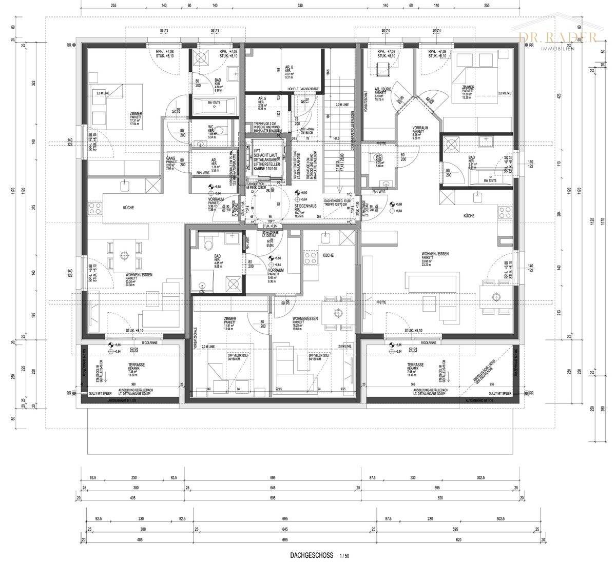
Diese gut aufgeteilte und helle Dachterrassenwohnung befindet sich im zweiten und damit letzten Liftstock. Der großzügige Wohn-Essbereich wird ergänzt durch ein Schlafzimmer, ein Arbeitszimmer, ein Badezimmer mit Fenster und wahlweise eine separate Toilette oder ein Abstellraum.
Ein zusätzlicher Abstellraum befindet sich komfortabel im gleichen Stockwerk.Netto-Kaufpreis für Anleger: € 243.950
Brutto-Kaufpreis für Eigennutzung: € 287.000Weitere Wohnungen in diesem Objekt:
ERDGESCHOSS
Wohnung Top 1: 2-Zimmer-Wohnung, 49.3 m², mit Terrasse und Garten
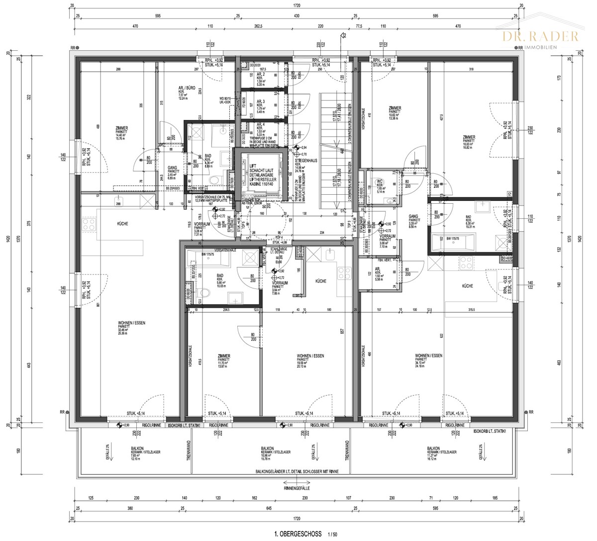
Wohnung Top 2: 3-Zimmer-Wohnung, 76.7 m², mit Terrasse und GartenOBERGESCHOSS
Wohnung Top 3: 3-Zimmer-Wohnung, 77.6 m², mit Balkon
Wohnung Top 4: 2-Zimmer-Wohnung, 40.2 m², mit Balkon
Wohnung Top 5: 2-Zimmer-Wohnung, 64.4 m², mit BalkonDACHGESCHOSS
Wohnung Top 6: 3-Zimmer-Wohnung, 63.82 m², mit Dachterrasse
Wohnung Top 7: 2-Zimmer-Wohnung, 40.50 m²
Wohnung Top 8: 2-Zimmer-Wohnung, 54.9 m², mit Dachterrasse
Optional:
Wohnung Top 6&7: 4-Zimmer-Wohnung, 104.9 m², mit Dachterrasse
-
Flächen
- Wohnfläche: 63,82 m²
- Zimmer insgesamt: 3
- Schlafzimmer: 1
- Badezimmer: 1
- Separate WCs: 1
- Stellplätze: 2
- Carport-Stellplätze: 1
- Außenstellplätze: 1
Zustand & Erschließung
- Zustand: projektiert
Sonstiges
– Massivbauweise
– Behagliche Fußbodenheizung
– Personenaufzug
– Dreifachverglaste Kunststofffenster
– Außenjalousien für optimalen Lichtschutz
– Praktische Abstellräume auf jedem Stockwerk
– Flexible Grundrissmitgestaltung
– Wohnungen mit Garten und/oder Terrasse bzw. Balkon
– Zentrumsnahe Lage -
Genießen Sie Harmonie und Komfort in Ihrem eigenen Zuhause, wo Ihr Wohlbefinden und Ihre Annehmlichkeiten oberste Priorität haben. Das nach Süden ausgerichtete Wohngebäude lässt das natürliche Licht großzügig in die Wohnräume strömen, während Jalousien Ihnen die Flexibilität bieten, die Lichtverhältnisse nach Ihrem persönlichen Geschmack anzupassen. Mit der steuerbaren Fußbodenheizung können Sie die Temperatur in jedem Raum individuell regeln, um stets ein angenehmes Raumklima zu gewährleisten. Das warme Parkett verleiht den Räumen eine gemütliche Atmosphäre, und das Badezimmer ist funktional gestaltet, um Ihren Komfort zu unterstützen.
- Heizungsart: Fußbodenheizung
- Befeuerung: Fernwärme
- Bodenbelag: Parkett
- Badausstattung: Badewanne
- Küche: Offene Küche
-
- HWB-Wert: 37,10 kWh/(m²*a)
- fGEE-Wert: 0,64
- Primärenergieträger: Fernwärme
- Energieausweis-Gebäudeart: Wohngebäude
-
Feldkirchen ist eine ruhige und bodenständige Kleinstadt, deren Zentrum Sie von Ihrem neuen Domizil aus zu Fuß oder mit dem Fahrrad in wenigen Minuten erreichen. Zudem gibt es Einkaufsmöglichkeiten außerhalb des Zentrums, welche noch näher an der Wohnanlage gelegen sind.
Die Lage besticht durch ihre Nähe zu malerischen Seen wie dem Ossiacher See oder Maltschacher See, welche zum Schwimmen und Spazieren einladen. Für Radfahrer und Wanderer sind die zahlreichen Routen und Wanderwege in der Nähe interessant, die nur darauf warten, erkundet zu werden. Die Turracher Höhe ist nur 35 Minuten entfernt und bietet Möglichkeiten zum Skifahren, Klettern, Wandern und Radfahren. Villach erreichen Sie in 30 Autominuten und das Stadtzentrum der Landeshauptstadt Klagenfurt in weniger als 30 Minuten. Von Feldkirchen aus sind Sie zudem in nur 45 Minuten in Tarvis, einer beliebten Grenzstadt in Italien, und wenn Sie das mediterrane Lebensgefühl voll auskosten möchten, ist die obere Adria nur 2,5 Autostunden entfernt.- Distanz zum Flughafen: 1,8 km
- Distanz zum Fernbahnhof: 0,5 km
- Distanz zur Autobahn: 9,5 km
- Distanz zu Bushaltestelle: 0,5 km
- Distanz zum Kindergarten: 0,4 km
- Distanz zur Grundschule: 0,6 km
- Distanz zur Hauptschule: 0,8 km
- Distanz zur Realschule: 12,9 km
- Distanz zu Einkaufsmöglichkeiten: 0,5 km
- Distanz zu Gaststätten: 0,3 km
-
- Kaufpreis: 243.950 €
- Käuferprovision: 3,6%
- Hinweis zur Courtage: 3% zzgl. 20% Ust
Grundrisse


























